施工の流れ
FLOW
ご相談から計画・施工までの流れ
FLOW
大手の造園会社では営業担当が窓口で、設計担当がほとんど現場に来ない…ということがありがちです。
弊社ではガーデンデザイナー西川孝雄が、現場調査から仕様打合せ、現場施工と一貫して携わるため、イメージ通りの庭づくりが実現します。
既存で利用できる物、その費用対効果、近隣との関わり、目線、日照、通風、排水、土壌などを確認した上で、お客様の家族構成や趣味、予算など複合的に検討し、プラン立案しています。
実際の事例を使用して施工までの流れをご紹介いたします。
犬の飼えるマンションの庭

Before

After

After

現地調査・打ち合わせ
施工会社様と工期や外構との取合いを確認しながら綿密に打合せ。
建築工事の進行具合を確認しつつ、段取りを調整しました。

ヒアリングと提案 /
プレゼンテーション
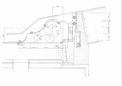
ゾーニングイメージ、メインガーデン、ファサードガーデンの3 方向からイメージスケッチをご提案。
当初は簡易プランでしたが、施主様と協議し、工期を調整してより完成度の高いプランへと変更しました。

カラーコーディネート
自然石乱張りや土留レンガ、化粧砂利などの素材を、建物の雰囲気や犬が遊ぶ空間との相性を考慮して選定。
レンガと同系色で統一感を持たせつつ、石材の質感や色調でリズムを加えました。
サークルのインド砂岩は単色でまとめ、全体を上品で落ち着いた雰囲気をご提案。

乱張り石

化粧砂利

自然石乱張りと土留レンガの色決め

施工準備
ご契約後、使用する資材の手配やスケジュールを確定し、施工の準備を進めます。
割付平面図や型紙の作成など、細部まで丁寧に段取りします。

外構の施工
位置関係・高さの墨出しから始め、砂岩サークルの敷設、ワイヤーメッシュや下地づくりを実施。
自然石の乱張りやレンガ積み、給排水接続、照明基礎まで含めて施工しました。

造園(植栽)の施工
ガビオンの据付、植木鉢高さの調整、溶岩石の組み合わせを行い、植栽レイアウトを整えました。
植付や支柱設置、照明機器の配線接続、防草シート敷設、化粧砂利敷きで仕上げ、機能的で管理しやすい庭に。

完工
マンションの顔となるファサード部分と、犬と一緒に過ごせる庭空間が完成。
自然石の質感と植栽が調和し、賃貸マンションの付加価値を高める空間となりました。
犬の足型をアクセントに取り入れ、遊び心とオリジナリティを演出しています。
カフェテラスの庭リフォーム

Before

After

After

プランニング・設計
アーテック・にしかわでは、現場を拝見しながらゾーニング(用途ごとの空間分け)と動線計画を行い、暮らしに合った庭を設計します。
平面図だけでなく、イメージスケッチや立面図・断面図も作成し、完成後の雰囲気を分かりやすくご提案。庭園図面はマーカーで着彩し、完成後の雰囲気を直感的にイメージいただけます。

樹木の撤去・移植
チェーンブロックを用いて抜根や掘り取り、根巻きを実施。
必要に応じて移植し、新しい植栽に備えました。

排水工事
塀やアプローチ、植栽などの素材や色味を選定。
建物との調和はもちろん、経年変化を見据えた色合わせをご提案します。

土間工事
既存芝生を守るために最小限の掘削を行い、サークルパーツの敷設や型紙作成、モルタル固定で仕上げました。

囲障工事
木製柱の根元や基礎ブロックに砂を充填し、腐食を防止。
長期的なメンテナンス性を高めています。
RC擁壁と外構リフォーム

Before

After

プレゼンテーション
平面図や門まわり・ガレージのイメージスケッチを作成し、仕上がりのイメージを分かりやすくご提案しました。

解体から仮設土留
植木・石積みを撤去し、仮設のH鋼を打ち込むために掘削。
埋め戻し後はランマでしっかり締め固め、矢板を設置して安全性を確保しました。
雨季には雨養生にも配慮しています。

配筋と底盤コンクリート
D13鉄筋を縦横200mmピッチでW配筋し、カーポート柱の位置は事前に箱抜き。
底盤コンクリートを打設し、強固な基礎を築きました。

型枠とサポート
コンクリート打設時の大きな圧力に耐えられるよう、計画的にサポートを配置。
底盤には事前に引っかかりを設け、型枠をしっかり固定しました。

コンクリート打設~脱型
ポンプ車で生コンを圧送し、ハンマーやバイブレーターを使用して密実に締め固め。
約5日間の養生後に型枠を解体し、石積みとの隙間を丁寧に補修しました。

犬走り土間
掘削後に土留ブロックを設置し、犬走り土間には金網を入れて割れを防止しました。

ガレージ土間
マンホールの高さを調整し、伸縮目地を入れてひび割れ防止。
仕上げにコンクリートを打設し、広々とした駐車スペースが完
成しました。

アプローチまわり
施工中もセキュリティを確保しながら作業を進行。
排水の迂回や溝肩ブロック設置を行い、仕上げにアクセントの石張りや洗い出し土間を施工しました。
金華の種石を配合することで、表情豊かなアプローチに仕上げています。

雑工事・付帯工事
既存の鉄部を塗装し直し、細部まで美しく整えました。
最後に溝掃除を行い、ミゾブタも現場に合わせて調整・設置して完工となりました。
お問い合わせはこちら
CONTACT US

